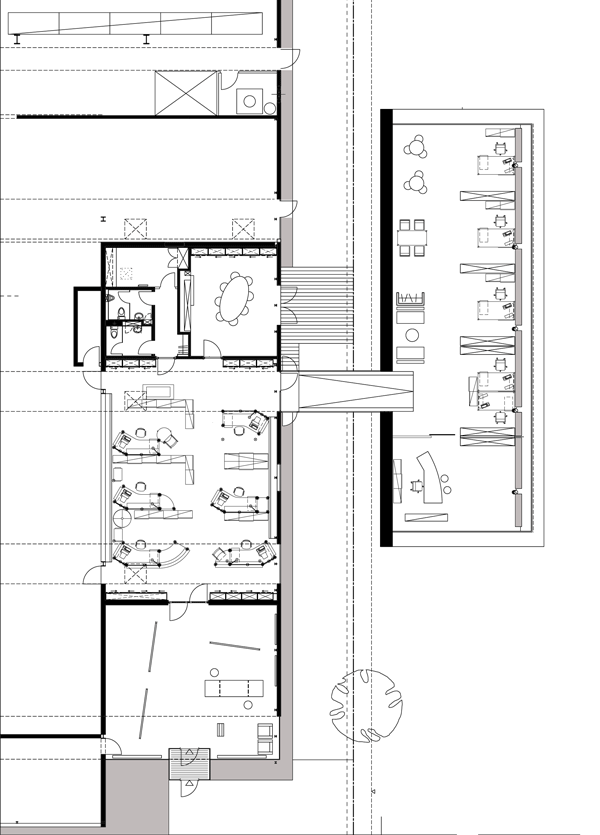
![]() Erdgeschoss ![]() Schnitt |
Ausgehend von der Notwendigkeit einer personellen Verstärkung der Geschäfts- führung, wurden wir 2003 zunächst mit der generellen Untersuchung eventueller Erweiterungsmöglichkeiten beauftragt. Da die Grenze der Bebaubarkeit des eigenen Grundstücks erreicht war, keine anderweitig direkt angrenzende Flächen verfügbar waren, wurde von uns eine Bebauung des -eigentlich nicht bebau- baren- Uferbereiches der Sieg im unmit- telbaren Hochwasserbereich vorgeschla- gen, untersucht und von der Bauaufsicht - nach Ausarbeitung eines gewässer-ver- träglichen Konzepts- entsprechend den behördlichen Verhandlungen die Geneh- migung in Aussicht gestellt. Die anschließende (aufgrund unseres Vorenturfes in 2004) erfolgte Beauftra- gung mit dem Entwurf, der Planung und Ausführung des Anbaus eines freistehen- den Bürotraktes hat folgenden Kriterien zu genügen: - technische, klare Anmutung und einfache Erscheinung entsprechend der Corporate Identity des AG's; - horizontale Längsgliederung analog einem Alu-Strangpreßprofil (Analogie zu Bilderrahmen); - aufgeständerte Bauweise aufgrund bestehender Hochwassergefährdung/ als Genehmigungsvoraussetzung. |
||||||||||
|
|||||||||||
|
Projekt: Büroerweiterung, Kirchen 2005 |
|||||||||||