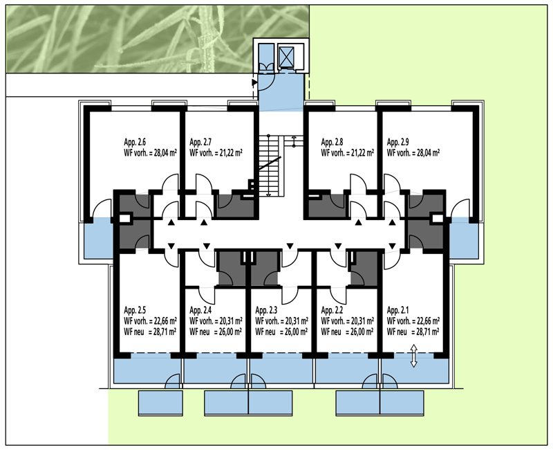
Dachgeschoss
Dachgeschoss
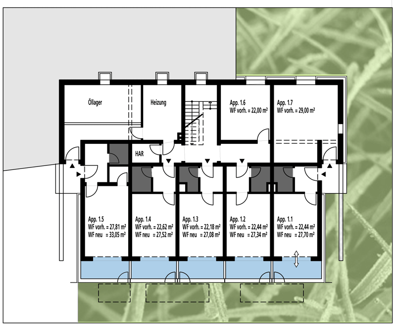
Erdgeschoss
Erdgeschoss
Untergeschoss
Untergeschoss



Bestand
Das „Grobetal-Appartementhaus“ mit 25
kleinen Appartements von 20 bis 28 m²
wurde 1975 errichtet als 3-geschossiges
Flachdachgebäude, ohne Unterkellerung.

Zustand
Während die Innenräume einen sehr gut
unterhaltenen Eindruck vermitteln, zu-
mindest im OG laufend renoviert wurden,
sind alle Außenfassaden, Balkone und
die Flachdachfläche aufgrund ihres
Alters nahezu abgängig. Auch genügen
die Fassaden rein optisch/ gestalterisch
als auch technisch heutigen Mindest-
standards nicht mehr.

Nutzung
Das Steuerberatungsbüro des AG's
nutzte zum Untersuchungszeitpunkt alle
9 Appartements des OG als zusammen-
hängende Bürofläche. Aufgrund seiner
Kleinteiligkeit mit vielen Bädern ist diese
Umnutzung auf Dauer sehr unwirtschaft-
lich und steht einem modernen, offenen
und kommunikativen Bürobetrieb nach
heutigen funktionalen, gestalterischen,
auch repräsentativen Ansprüchen ent-
gegen.
Zurück Zurück Home

Büroaufstockung u. Fass.-Sanierung
Appartementhaus L., Siegen 2004