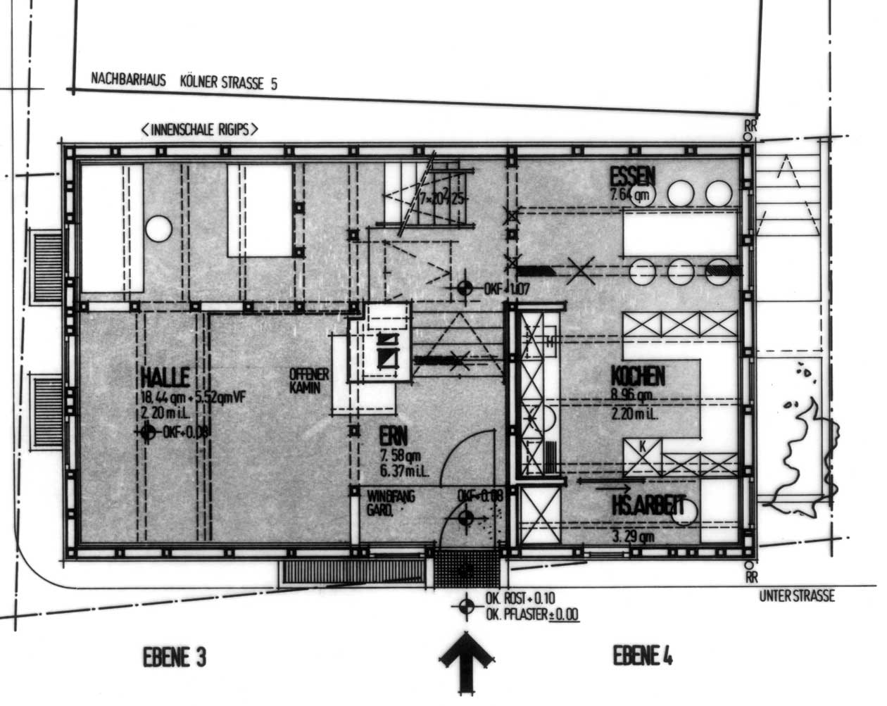
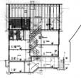
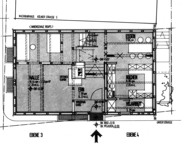
Erdgeschoss

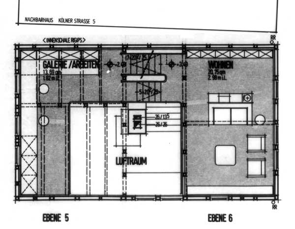
1. Obergeschoss

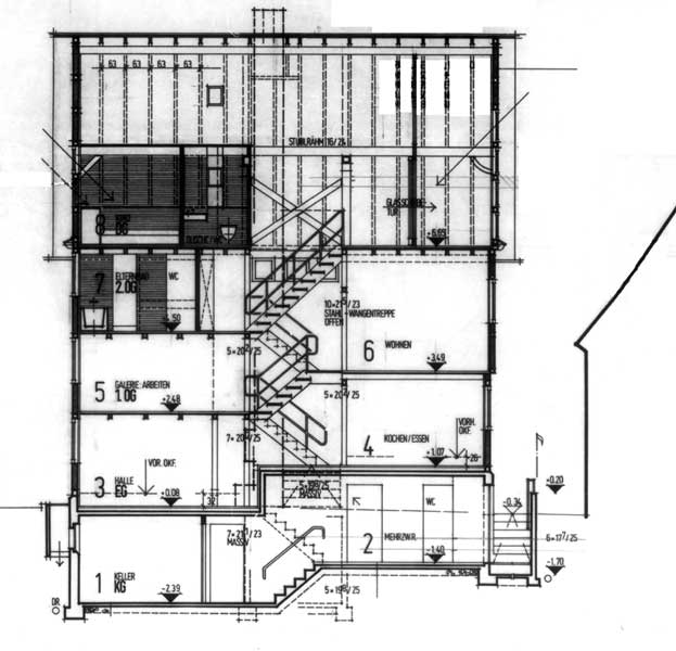
Schnitt



Das innerhalb des Gesamtensembles der
Freudenberger Altstadt „Alter Flecken" unter
Denkmalschutz stehende Fachwerkgebäude
stammt nachweislich direkt aus den Jahren
nach dem grossen Stadtbrand 1666.

Im Rahmen des Modellvorhabens des Landes
NRW wurde das Gebäude in den Jahren
1980/81 als Durchbaumassnahme vollkommen
saniert und neu ausgebaut.
Der desolate Zustand und der Zerstörungsgrad
machten eine völlige Entkernung erforderlich,
die dem damaligen Denkmalbegriff entsprach. Gefache und Ausbauteile wurden zunächst
komplett entfernt, was aufgrund des Zustandes
unvermeidbar war.Die Schadenanalyse der
Hölzer ergab die Herausnahme und den Aus-
tausch von etwa 60 % der Aussenwände.Nach
Windsicherung und Unterfangen des Daches
durch Rundholzstützen wurde das Kellerge-
schoss tiefer geschachtet und neu in
Sichtbeton erstellt.

Die heutigen Wohnbedürfnissen entsprechen-
den, notwendigen Raumhöhen wurden erreicht,
indem die Massivdecken in EG und 1.OG
abgesenkt werden konnten.Die notwendige,
komplette Erneuerung aller Innenkonstruktionen
ermöglichte einen offenen und transparenten
Grundriss über insgesamt 6 Ebenen als Split-
Level nach zeitgemäßen Wohnvorstellungen
und Gestaltungskriterien.
 









 

Sanierung denkmalgeschütztes
Fachwerk-Wohnhaus A., Alter Flecken