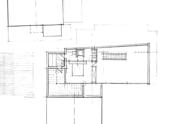
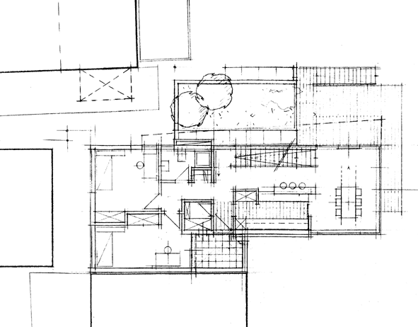
1. Obergeschoss


2. Obergeschoss


Ansicht Süd-Ost


Das am Ufer des Bodensees in privilegierter
Lage geplante Wohnhaus für einen Designer
steht im Kontext zu einer alten, gewachsenen
Dorfstruktur. Der Anbau an ein altes Nachbar-
gebäude stellt den Ersatz dar für ein bau-
fälliges Werkstattgebäude, welches bis auf ein
historisches Kreuzgewölbe im Untergeschoß
abzureißen war. Das Volumen des Neubaus
war durch den Altbau vorgegeben.

Besondere Bedingungen ergaben sich aus
der Forderung nach großzügigen Räumen im
Rahmen äußerst beengter Platzverhältnisse
und vielerlei einengender Abhängigkeiten.
Angestrebt wurder der Charakter eines Boots-
hauses in Holzkonstruktion mit ausladender
Seeterrasse.

Die Fassade ist mit differenzierten horizontalen
Holzverschalung versehen: vom komplett
geschlossenen, hinterlüfteten Vorsatzschalen
vor Wärmedämmungen, teils geschlossen halb-
transparenten Vorhängen über weiter geöffnete
transparente Sichtwände mit dahinter liegender
Verglasung bis hin zu völlig offenen Glasfassade.

Anordnung und Größe der Fensteröffnungen
ergaben sich aus der Nutzung, wünschens-
werten Sichtbeziehungen, Sonnenschutz,
Himmelsrichtung und Wetterschutz.

Dis sich aus der Baukörperform ergebende
Anforderung als hart konturierter, scharf
geschnittener Körper sollte dabei Gestalltungs-
kriterium bleiben.








Wohnhaus W., Insel Reichenau 2000