|
 |
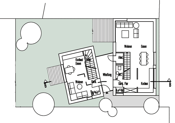
EG Einfam.-Whs.
1. OG Mehrfam.-Whs.
Schnitt Mehrfam.-Whs.
|
Die Entwicklung eines kleinteiligen, inner-
städtischen Wohnprojektes in direkter Anbindung
zur denkmalgeschützten Freudenberger Altstadt
"Alter Flecken" hat eine stark verdichtet kleine
Wohnsiedlung in "Nachbar-Gemeinschaft" zum Ziel.
Während ein 2 1/2-geschossiger Riegel mit 6 WE
über ebenerdiger, offener Stellplatzanlage zur
Straße hin abschiermt, führt ein privater Wohn-
weg zu einer dorfähnlichen Gruppierung von
6 Einzelhäuser im Park.
Diese sind als "Mehrgenerationenhäuser"
konzipiert. Sie bestehen aus einem reduziertem
Kernhaus, 2-geschossig mit Satteldach,
orientiert an den alten Fachwerkgebäuden der
Altstadt, je in Verbindung mit einem kleineren
2-gesch. Nebengebäude mit Flachdach, als
intime Sitzterrasse/ Sonnendeck.
Die Nebengebäude ermöglichen jeweils in Ver-
bindung mit einer abgeschlossenen, groß-
zügigen Kernwohnung, flexieble Zusatznutzung,
je nach Art und Dauer der jeweiligen Lebens-
umstände der Bewohner, z.B.:
-für kinderreiche Familien
-für Freiberufler
-für Künstler
-für Altenpflege
-für Behninderte
-für erwachsene Kinder
-bei Nicht-Eigennutzung
|