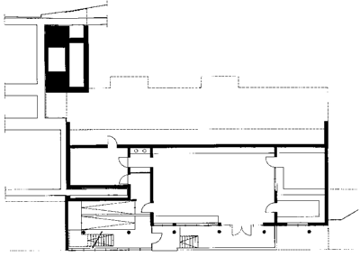
Erdgeschoss


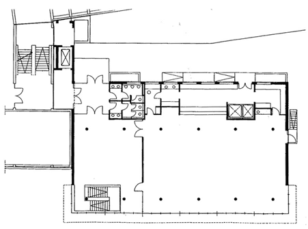
1. Untergeschoss


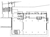
2. Untergeschoss


Bauanlaß

Durch Verlagerung des Ganztagsgymnasium
Am Giersberg und Zusammenlegung mit dem
Gymnasium Am Rosterberg wurden die besteh-
enden Gebäude an der Rosterstraße 143 zum
neuem Städtischem Gymnasium Am Rosterberg,
jetzt Peter-Paul-Rubens-Gymnasium zusammen-
gefaßt.

Bauaufgabe/ Funktion

Die Bauaufgabe besteht aus drei funktionalen
Teilen:
- Umbauten in den bestehenden Klassentrakten
und Verlegung/ Vergrößerung von Lehrbereich
und Bibliothek

- Anbau eines neuen Verkehrskerns mit Anbin-
dung an sechs Geschosse und Einbau eines
behinderten-gerechten Aufzuges

- Anbau eines Erweiterungsbauwerks mit den für
den Ganztagesbetrieb erforderlichen Freizeit-
einrichtungen, i.E.: Mensa und Küche im EG,
Aufenthalts-, Ruhe- und Spielräume, Schüler-
Disko und eine von Schülern selbst betriebene
Cafeteria im 1.UG sowie Werkräume im 2.UG.

Die Annahme und vielfältige Nutzung der ange-
botenen neuen Räumlichkeiten durch die
Schüler hat die sensible und schwierige Aufgabe
der Verschmelzung zweier bisher eigenständiger
Schulen entscheidend unterstütz.

 











 

Lageplan
Erweiterung
Ganztagsgymsium Am Rosterberg