Ansicht Talseite/ Ost


Seitenansicht/ Nord


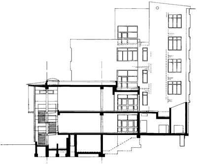
Querschnitt


Aufgrund der Ausbildung des kompletten Anbau-
körpers als ein Brandabschnitt über drei
Geschosse und zusätzlichen, ebenerdigen Flucht-
wege auf allen Geschossen konnte die Treppen-
anlage offen in Stahl ausgeführt werden.
Die als Ersatz- des zugunsten des Anbaus ent-
fallenden alten Pausenhofes- geplante Pausen-
fläche auf dem Dach und die hiermit im
Zusammenhang geplante extensive Dachbegrü-
nung konnte aus Kostengründen nicht realisiert
werden.

Konstruktion

Außenwände
Ortbeton als Sichtbeton innen, Außen mit
Wärmedämmverbundsystem, durchgefärbtem
Kratzputz

Innenwände
Ortbeton als Sichtbeton/ Brettschalung

Decken
Ortbeton, Untersicht als Sichtbeton, glatt

Stützen
Stahlrohrstützen mit Brandschutzbeschichtung

Alu-/ Glasfassade
Pfosten-/Riegelkonstruktion aus Alu,
silber-eloxiert, Funktionsgläser

Fenster/ Türen Alu, silber-eloxiert

Bewegliche Flügel, gelb einbrennlackiert

 







Architekturpreise und Auszeichnungen:


 
Anerkennung bei
"Auszeichnung guter Bauten 1999"
des BDA Siegen-Olpe-Wittgenstein





Erweiterung

Ganztagsgymsium Am Rosterberg